
时间:2024-11-07 来源:网络 人气:

火灾自动报警系统设计规范是针对工业与民用建筑中设置的火灾自动报警系统而制定的一系列技术要求。这些规范旨在确保系统的合理设计,以防止和减少火灾危害,保护人身和财产安全。本文将详细介绍火灾自动报警系统设计规范的相关内容。

根据GB50116-2013《火灾自动报警系统设计规范》,本规范适用于工业与民用建筑内设置的火灾自动报警系统。其目的是为了合理设计火灾自动报警系统,防止和减少火灾危害,保护人身和财产安全,同时确保系统的安全适用、技术先进、经济合理。

在火灾自动报警系统设计规范中,一些关键术语和定义如下:
报警区域(Alarm Zone):将火灾自动报警系统的警戒范围按防火分区或楼层划分的单元。
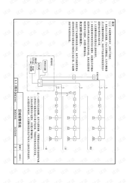
探测区域(Detection Zone):将报警区域按探测火灾的部位划分的单元。
保护面积(Monitoring Area):一只火灾探测器能有效探测的面积。
安装间距(Spacing):两个相邻火灾探测器中心之间的水平距离。
保护半径(Monitoring Radius):一只火灾探测器能有效探测的单向最大水平距离。
区域报警系统(Local Alarm System):由区域火灾报警控制器和火灾探测器等组成,或由火灾报警控制器和火灾探测器等组成,功能简单的火灾自动报警系统。
集中报警系统(Remote Alarm System):由集中火灾报警控制器、区域火灾报警控制器等组成,功能较为复杂的火灾自动报警系统。

火灾自动报警系统的设计应遵循以下要求:
系统保护对象分级:根据保护对象的重要性、火灾风险等因素,对系统进行分级设计。
火灾探测器设置部位:根据火灾探测器的性能和适用范围,合理设置探测器的安装位置。
报警区域和探测区域的划分:根据建筑物的结构、功能等因素,合理划分报警区域和探测区域。
系统形式的选择和设计要求:根据建筑物的特点,选择合适的系统形式,并满足设计要求。
消防联动控制设计要求:确保消防联动控制系统的可靠性和有效性。
火灾应急广播和警报装置:确保火灾应急广播和警报装置的及时、准确播放。
消防专用电话:确保消防专用电话的畅通,以便及时沟通。

火灾自动报警系统设备与部件的选择应符合以下要求:
符合国家标准:设备与部件应符合国家有关标准和市场准入制度。
接口与通信协议兼容:设备与部件之间的接口和通信协议应符合现行国家标准。
设备总数与地址总数限制:任一台火灾报警控制器所连接的设备总数和地址总数不应超过规定值。
总线短路隔离器:系统总线上应设置总线短路隔离器,以保护消防设备。

GB50116-2013《火灾自动报警系统设计规范》是对1998年版原规范的全面修订。修订后的规范增加了许多新的内容,如线型火灾探测器、吸气式感烟火灾探测器、可燃气体探测器等。为确保规范的实施,相关部门应加强对火灾自动报警系统设计、施工、验收等环节的监督管理。
火灾自动报警系统设计规范是保障人民生命财产安全的重要依据。设计人员在进行火灾自动报警系统