
时间:2024-10-31 来源:网络 人气:

随着现代消防系统的广泛应用,海湾模块作为其中的关键组成部分,其接线方式直接影响到系统的稳定性和可靠性。本文将为您详细解析海湾模块的接线大全图,帮助您更好地理解和应用这些模块。

海湾模块是海湾火灾自动报警系统中的一种重要组件,主要包括输入模块、输出模块、输入输出模块和切换模块等。这些模块通过特定的接线方式与探测器、报警器等设备连接,实现火灾报警、联动控制等功能。

以下将针对几种常见的海湾模块进行接线图解析,帮助您了解其接线方法和注意事项。

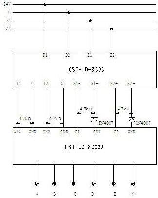
该模块主要用于接收来自探测器的信号,如烟雾、温度等。其接线图如下:

图中端子说明如下:
Z1、Z2:接控制器二总线,无极性
I、G:与设备的无源常开触点(设备动作闭合报警型)连接;也可通过电子编码器设置为常闭输入

该模块既可以接收探测器信号,也可以输出控制信号,实现联动控制。其接线图如下:

图中端子说明如下:
Z1、Z2:接控制器二总线,无极性
I、G:与设备的无源常开触点(设备动作闭合报警型)连接;也可通过电子编码器设置为常闭输入
O-、O:输出,有极性

海湾100B声光报警器是海湾报警系统中最常用的产品之一。其安装接线示意图如下:

图中端子说明如下:
Z1、Z2:接控制器二总线,无极性
D1、D2:接直流24V,无极性

在进行海湾模块接线时,请注意以下事项:
确保所有接线符合相关标准和规范
在接线过程中,注意安全,避免触电等事故
在接线完成后,进行测试,确保系统正常运行
海湾模块接线大全图是消防系统中不可或缺的一部分。通过本文的解析,相信您已经对海湾模块的接线方法有了更深入的了解。在实际操作中,请务必遵循相关标准和规范,确保系统的稳定性和可靠性。