
时间:2025-04-28 来源:网络 人气:
揭秘给排水系统流程图:你的家,如何“喝水”又“排水”?
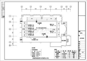
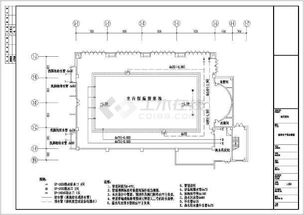
想象当你清晨醒来,打开水龙头,清泉般的自来水便倾泻而出,滋润你的口腔;又或者,当你洗完澡,污水顺着下水道迅速消失,不留痕迹。这一切的背后,都离不开一个神奇的系统——给排水系统。今天,就让我们一起揭开这个系统的神秘面纱,通过一幅幅流程图,看看你的家是如何“喝水”又“排水”的。

1. 水源引入:首先,水源从自来水厂通过管道引入小区或建筑物。这一环节,需要确保水源的清洁和安全。
2. 水表安装:在引入管道上安装水表,用于计量用水量。
3. 管道铺设:从水表开始,管道将水输送到各个楼层和房间。这一环节,需要根据建筑物的结构合理规划管道走向。
4. 阀门设置:在管道上设置阀门,用于控制水流的方向和流量。
5. 水压调节:为了保证水压稳定,可能需要安装减压阀或调压器。
6. 管道连接:将管道与水龙头、马桶、洗衣机等用水设备连接。
7. 水质处理:在进入用水设备之前,可能需要安装过滤器或软化器,确保水质符合标准。

1. 污水收集:污水从用水设备通过下水道收集,流入排水管道。
2. 管道铺设:排水管道将污水输送到小区或建筑物的排水井。
3. 检查井设置:在排水管道上设置检查井,方便检查和维护。
4. 污水提升:如果排水管道低于排水井,需要安装污水提升泵。
5. 污水处理:污水进入污水处理厂,经过处理达到排放标准。

1. 设计阶段:在建筑设计阶段,给排水系统流程图是必不可少的。它可以帮助设计师了解系统的组成和运行原理,确保系统的合理性和安全性。
2. 施工阶段:施工人员可以根据流程图进行施工,确保施工质量。
3. 维护阶段:维修人员可以通过流程图快速找到故障点,提高维修效率。
4. 教育普及:给排水系统流程图可以帮助人们了解日常生活中的用水和排水过程,提高环保意识。
在这个看似平凡的系统背后,隐藏着无数的科学原理和技术。通过给排水系统流程图,我们可以清晰地看到这个系统的运作过程,感受到科技的力量。让我们一起珍惜水资源,共同守护这个神奇的系统,让我们的生活更加美好!