
时间:2025-04-20 来源:网络 人气:
亲爱的读者们,你是否曾想过,那些轰鸣的机器、忙碌的流水线,背后默默支撑它们运转的,竟然是这看似平凡无奇的工厂供配电系统?今天,就让我们一起揭开这神秘的面纱,探索一下工厂供配电系统设计的奥秘吧!

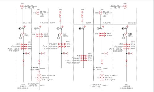
想象电力系统就像一个巨大的能量工厂,源源不断地生产出电能。这些电能并不能直接被工厂里的机器使用,因为它们的电压太高了。这就需要工厂供配电系统来施展“魔法”,将电能降压,再分配到各个厂房或车间中去。
这个过程,就像一个接力赛,电能从工厂降压变电所出发,经过高压配电线路,到达车间变电所,最后通过低压配电线路,输送到用电设备。这一路走来,电能经历了从高压到低压的转变,也完成了从集中到分散的分配。

工厂供配电系统的设计,就像一场精心编排的交响乐,每个环节都需要精确的计算和巧妙的安排。其中,负荷计算和变压器选择,就是这场交响乐中的两个重要音符。
首先,我们需要对工厂的各个车间进行负荷计算,了解它们的用电需求。这就像给每个车间都量一下体重,看看它们需要多少电能才能正常运转。根据负荷计算的结果,选择合适的变压器,确保电能的稳定供应。
在这个过程中,设计师需要综合考虑多个因素,比如车间的负荷数量和性质、生产工艺对负荷的要求,以及负荷布局等。只有做到精确计算,才能让电能像血液一样,在工厂的每个角落流淌。

工厂供配电系统,就像一个精密的仪器,需要时刻保持警惕,以防万一。这就需要短路电流计算和继电保护来保驾护航。
短路电流,就像一场突如其来的风暴,可能会对电气设备造成严重损害。因此,设计师需要计算出短路电流的大小,并采取相应的继电保护措施,确保电气设备的安全。
这个过程,就像给工厂供配电系统穿上了一层“防护衣”,让它能够在各种突发情况下,依然保持稳定运行。
除了安全可靠,节能环保也是工厂供配电系统设计的重要考量。设计师需要选择高效、低能耗的电气设备,降低工厂的能源消耗。
此外,防雷接地也是不可忽视的一环。在雷雨天气,雷电可能会对工厂供配电系统造成破坏。因此,设计师需要设计合理的防雷接地装置,保护工厂免受雷击。
这个过程,就像给工厂供配电系统搭建了一个“避雷针”,让它能够在恶劣天气中,依然保持稳定运行。
工厂供配电系统,就像一位默默无闻的“守护者”,为工厂的正常运转提供着源源不断的动力。它不仅需要精确的计算和巧妙的安排,更需要安全可靠、节能环保的设计理念。
在这个充满挑战和机遇的时代,让我们为这些默默付出的“守护者”点赞,也希望工厂供配电系统设计能够越来越完善,为我国工业发展贡献更多力量!