
时间:2025-04-16 来源:网络 人气:
你知道吗?在我们身边,有一个默默无闻的英雄,它就是消防给水系统。它就像城市的守护神,时刻准备着为我们的生命财产安全保驾护航。今天,就让我带你走进这个神秘的世界,一起揭开消防给水系统的神秘面纱吧!

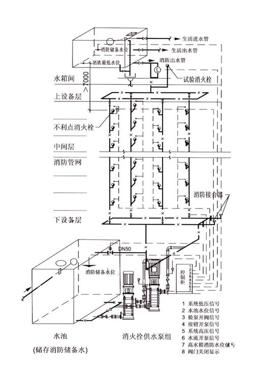
消防给水系统,顾名思义,就是为消防灭火提供水源的系统。它由消防水源、消防给水管网、消防水泵、高位消防水箱、稳压设施以及消防水泵接合器等设施组成,是一个庞大的“大家庭”。
- 消防水源:它是消防给水系统的“心脏”,为整个系统提供源源不断的“血液”。消防水源可以是天然水源、市政给水或消防水池等,其中市政给水是主要的消防水源。
- 消防给水管网:它是消防给水系统的“血管”,负责将水源输送到各个角落。管网类型可分为环状消防给水管网和枝状消防给水管网,其中环状管网更为安全可靠。
- 消防水泵:它是消防给水系统的“动力”,负责将水源提升到一定高度,以满足消防灭火的需求。
- 高位消防水箱:它是消防给水系统的“储血库”,用于储存一定量的消防用水,以应对突发情况。
- 稳压设施:它是消防给水系统的“血压计”,用于保持消防给水系统的稳定压力。
- 消防水泵接合器:它是消防给水系统的“接口”,用于连接消防车等消防设备。

消防给水系统根据不同的分类标准,可以分为多种类型。
- 按设置位置、用途和给水范围分类:可以分为市政消防给水系统、室外消防给水系统和室内消防给水系统。
- 按水压分类:可以分为高压消防给水系统、临时高压消防给水系统和低压消防给水系统。
其中,高压消防给水系统最为理想,它始终能满足水灭火系统所需要的工作压力和流量,火灾发生时无须消防水泵直接加压。

消防给水管网的布置至关重要,它直接关系到消防灭火的效果。
- 市政消防给水管网的布置:工业园区、商务区、居住区等区域采用两路消防供水,当其中一条引入管发生故障时,其余引入管在保证满足70%生产生活给水的最大小时设计流量条件下,应仍能满足规定的消防给水设计流量。
- 室外消防给水管网的布置:室外消防给水采用两路消防供水时应采用环状管网,但当采用一路消防供水时可采用枝状管网。
- 室内消防给水管网的布置:室内消火栓系统管网应布置成环状,当室外消火栓设计流量不大于20L/s,且室内消火栓不超过10个时,除特殊情况外,可布置成枝状管网。
近年来,住建部发布了《建设工程施工现场消防安全技术标准(局部修订征求意见稿)》,其中明确指出,高度超过100m的在建工程应采用永临结合消防给水系统,其他在建工程宜采用永临结合消防给水系统。
永临结合消防给水系统应包括消防水池(箱)、消防水泵房、消防给水立管等消防给水设施,以确保施工现场的消防安全。
消防给水系统是建筑工程中不可或缺的一部分,其完善性直接关系到火灾应急响应的有效性。因此,在工程竣工后,必须进行消防给水系统的验收。
验收内容包括:
- 系统竣工验收:由建设单位组织,包括质检、设计、施工、监理等参与。
- 资料提供:施工单位应提供竣工验收申请报告、设计文件、竣工资料等。
- 水源检查:检查室外给水管网的进水管管径及供水能力,高位消防水箱等的有效容积和水位测量装置等是否符合设计要求。
- 消防水泵房验收:包括建筑防火要求、应急照明、安全出口、采暖通风、排水和防洪等是否符合设计要求。
只有通过验收的消防给水系统,才能投入使用,为我们的生命财产安全保驾护航。
消防给水系统是我们生活中不可或缺的一部分,它默默无闻地守护着我们的安全。让我们共同关注消防给水系统,为构建平安社会贡献自己的一份力量!