
时间:2025-04-14 来源:网络 人气:
你知道吗?在施工现场,用电安全可是头等大事!今天,我要和你聊聊一个听起来有点儿复杂,但实则至关重要的东西——二级漏电保护系统。想象它就像施工现场的“安全卫士”,时刻守护着我们的用电安全。那么,它究竟是个啥?又是怎么保护我们的呢?别急,让我带你一探究竟!

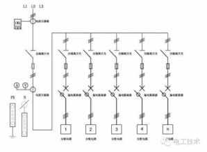
二级漏电保护系统,顾名思义,就是在施工现场的配电系统中,设置了两个级别的漏电保护措施。它主要由总配电箱、分配电箱和开关箱组成,每个环节都肩负着保护用电安全的重任。

想象电流就像一条欢快的小溪,在施工现场的各个角落流淌。而漏电保护系统,就像是小溪旁的“守卫”,时刻警惕着小溪的流向。
1. 总配电箱:它是整个系统的“大脑”,负责接收电源,并将电流分配到各个区域。当电流异常时,总配电箱会立即发出警报,切断电源,防止事故发生。
2. 分配电箱:它是总配电箱的“助手”,负责将电流分配到各个分配电箱。如果某个分配电箱出现漏电现象,分配电箱会立即切断该区域的电源,保护设备和人员安全。
3. 开关箱:它是施工现场的“眼睛”,负责控制用电设备的开关。当开关箱检测到漏电时,会立即切断电源,防止事故扩大。

1. 提高安全性:二级漏电保护系统可以及时发现并切断漏电电路,有效防止触电事故的发生。
3. 降低损失:及时切断漏电电路,可以减少设备损坏和人员伤亡,降低损失。
1. 总配电箱:应设置在靠近电源的区域,箱体结构、箱内电器设置及使用应符合规范要求。
2. 分配电箱:应设置在用电设备或负荷相对集中的区域,箱体结构、箱内电器设置及使用应符合规范要求。
3. 开关箱:应设置在用电设备附近,箱体结构、箱内电器设置及使用应符合规范要求。
4. 漏电保护器:应选用符合容量要求和质量合格的产品,确保其灵敏可靠。
1. 定期检查:定期检查系统各部件,确保其正常运行。
3. 培训人员:对施工现场人员进行安全用电培训,提高安全意识。
二级漏电保护系统是施工现场用电安全的“守护神”。了解它、掌握它,才能让施工现场的用电更加安全可靠。所以,下次当你走进施工现场,不妨多关注一下这个“安全卫士”,让我们一起为用电安全保驾护航!