
时间:2025-04-08 来源:网络 人气:
你知道吗?在咱们这个日新月异的建筑行业里,有一种神奇的技术,它就像魔术师手中的道具,让高楼大厦拔地而起,这就是——高支撑模板系统!今天,就让我带你一起揭开它的神秘面纱,看看它是如何让建筑奇迹发生的吧!

首先,咱们得聊聊材料。高支撑模板系统可不是随便搭搭的,它需要的是顶级的材料。你得对那些钢管、扣件等材料的产品合格证、生产许可证、检测报告来个“大检阅”,确保它们都是“健康”的。而且,对于钢管的外观,你得抽查30%以上,如果发现“病态”的,那就得全部检验,不合格的还得送去专业机构检测。这就像给建筑打基础,必须扎实!

接下来,咱们得有个详细的“作战计划”。项目技术负责人要组织相关人员,结合工程实际,制定出高大模板支撑系统的专项施工方案。这个方案得经过技术部门的审核,施工单位技术负责人的签字,还得经过专家论证,才能正式实施。这就像一场战役,没有周密的计划,怎么行呢?

安全,永远是施工的重中之重。搭设高大模板支撑架体的作业人员,必须持有特种作业操作证,就像拿到了“上岗证”。他们得严格按照施工方案和安全技术交底书的要求操作,不能有丝毫马虎。这就像在高速公路上驾驶,安全带必须系好!
你知道吗,现在有一种新型模板支撑体系,它就像一个“变形金刚”,可以根据不同的需求,组合出各种形态。立墙模板、板支撑系统、框架柱支撑体系,样样俱全。而且,利用专业软件,还能快速、准确地计算所需材料数量,节省了8%的材料,是不是很神奇?
还有,铝合金模板支撑系统正在逐步取代传统的木模板和全钢大模板。它自重轻、周期快、质量好、周转次数多、整体性高,符合低碳、节能的原则。而且,它还能将一层建筑的大体框架结构模块化设计,并进行浇筑,大大提高了施工效率。
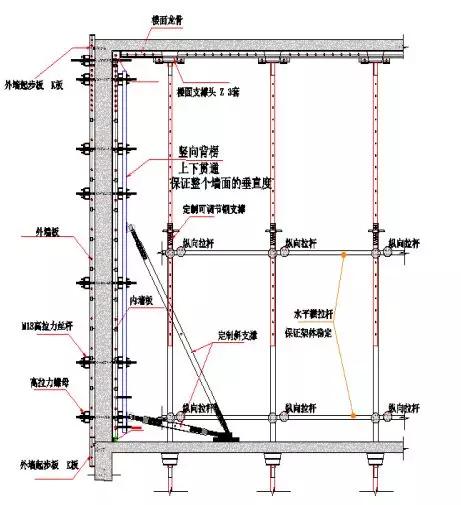
咱们得聊聊高支撑模板排架系统。它就像一个“钢铁侠”,在建筑施工中发挥着重要作用。但是,在使用过程中,也要注意一些问题,比如材料的质量、设计的合理性、拆除的安全性等。只有这样,才能确保施工过程中的安全稳定。
高支撑模板系统就像一位默默无闻的“幕后英雄”,为我们的城市建设贡献着力量。让我们一起为它点赞,为我国建筑事业的蓬勃发展喝彩!